Ga naar productpagina > (nieuw venster)
TCI DC MAXI JOLLY US DALI
TerugDirect current dimmable electronic drivers with DIP-SWITCH
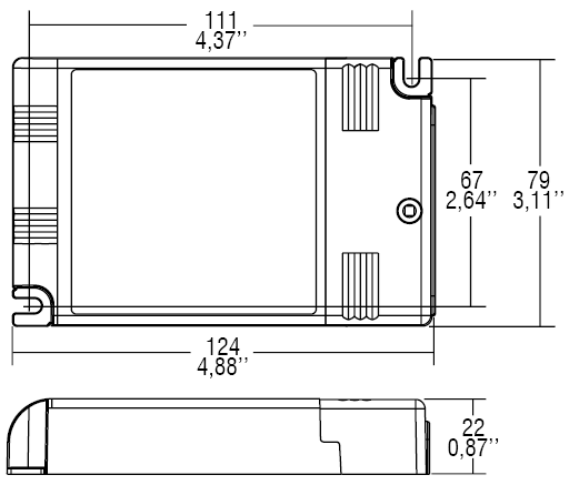
| Afmetingen | 124 x 22 x 79 mm |
|---|---|
| Gat maat | 84mm |
| Technische kenmerken | RIPPLE FREE ACTIVE PFC (pf>0.9) SELV >60/<> DIMMING: AMPLITUDE (AM) IEEE1789-2015 – Dim-to-Warm WIDE RANGE INPUT VOLTAGE 4/5 kV DM/CM SURGE Input Protection |
| Manier van dimmen | DALI-2 (also DALI-1), 1-10V – 0-10V, PUSH (on the Mains) |
| Ouput | 350mA, 400mA, 450mA, 500mA, 600mA, 650mA, 700mA, 850mA, 900mA, 1000mA, 1050mA |
Deze drivers zijn alleen te bestellen d.m.v. direct contact met ons op te nemen.
-
De gekozen zet is incl. driver en spots. Dit kan worden aangesloten op een geschakeld stopcontact.
Aan/uit driver. Bij een set wordt een eenvoudige aan/uit driver meegeleverd, geschikt voor gebruik met een geschakeld stopcontact.
Let op: deze driver is niet dimbaar aan de primaire zijde. -
De gekozen zet is incl. driver en spots. Hier is alleen nog een bij RL dimmer nodig.
RL dimbare driver. Drivers die gebruik maken van fase aansnijding (triac) en faseafsnijding (ELV). Ook wel leading edge en trailing edge genoemt. Om te kunnen dimmen via uw eigen RL(C) (triac) dimmer. O.a. muurdimmer, dimactor, etc.








